Kittelfjäll värdshus Nordmark & Nordmark arkitekter
Foto: Michael Engman
Kittelfjäll

Kittelfjäll Värdshus

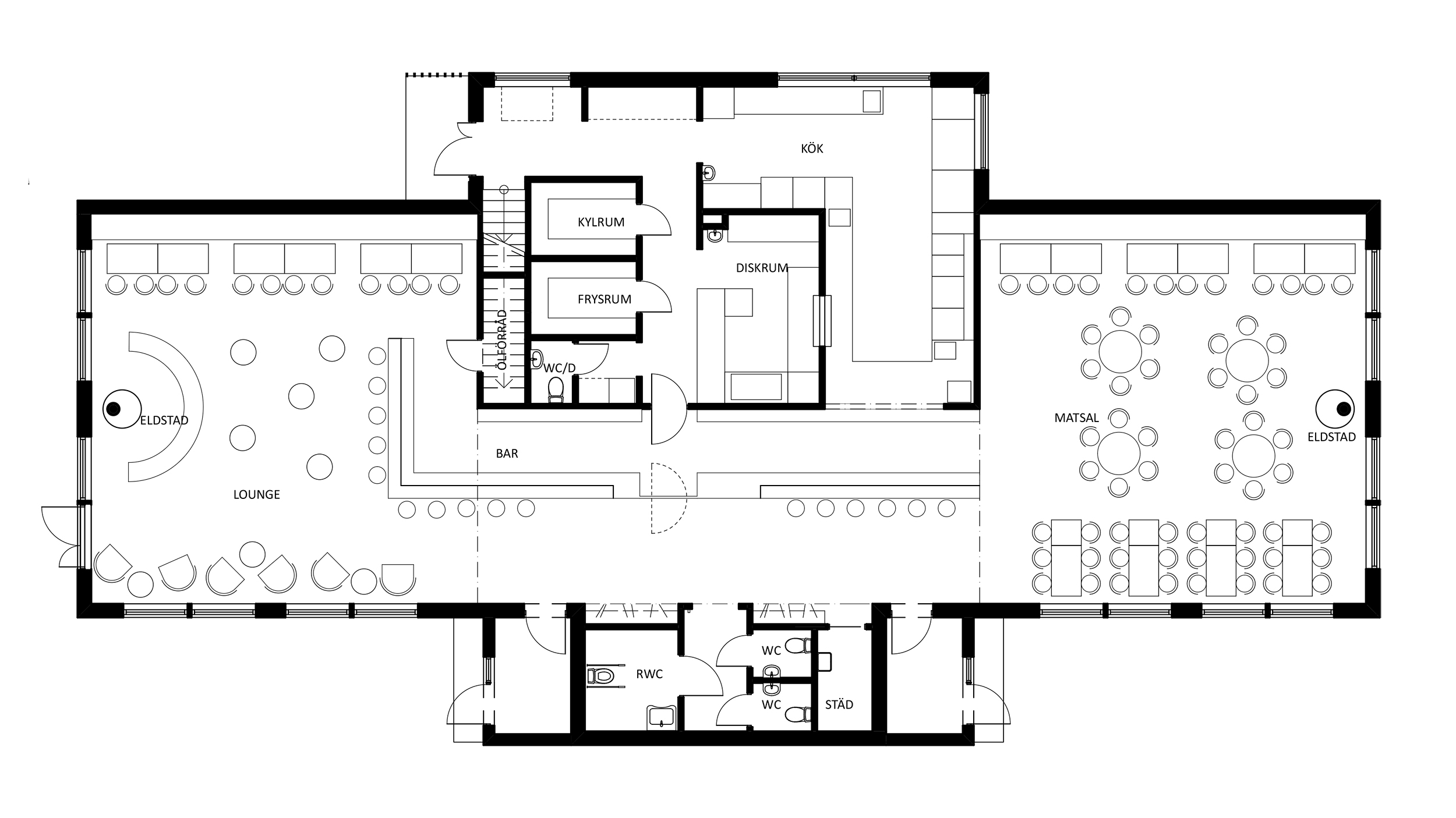
En enkel och tydlig volym i det öppna fjällandskapet inrymmer Kittelfjälls nya mötesplats, en restaurang som drivs av Jasper och Lotta Bergström, som tillsammans med Jens och Annika Fredriksson även står för den hemtrevliga inredningen. Kittelfjälls värdshus ligger alldeles intill en av Kittelfjälls skidbackar och serverar rätter lagade på lokala råvaror. Arkitekturen som är inspirerat av en lada - robust och med mycket rymd välkomnar gäster i slalompjäxor till lunch och uppklädda för finare middagssittningar och bröllop på kvällen. Trä tillsammans med starka färger är tongivande för interiören. Den varma och ombonade känslan står på vintern i tydlig konstrast till det karga landskapet och skidbackarna utanför.


  • Program Restaurang
  • Status Färdigställt
  • Byggår 2017
  • Byggherre Kålårado invest
  • BTA 480 m²